
来源:木屋世界
翻译:张昕玮
本案是美国第一座用国产正交胶合木(CLT)建造的建筑。
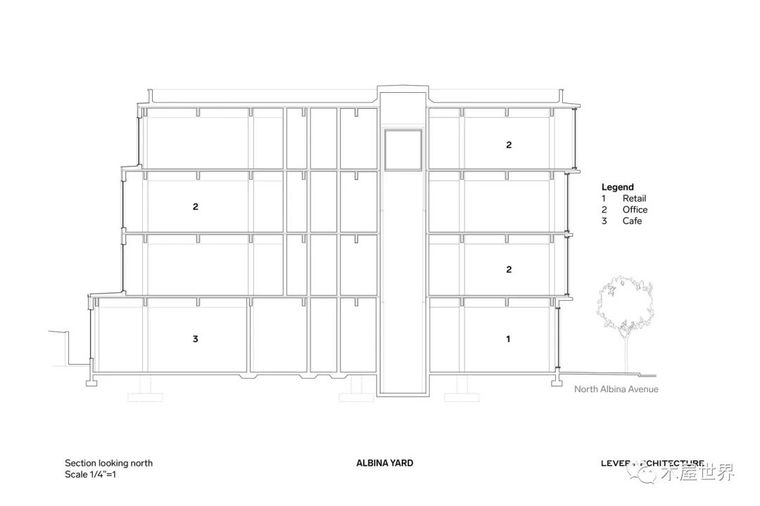
该项目是位于北波特兰的一座面积为16,000平方英尺(约1486平方米)带有底层零售的新的办公大楼。该建筑采用大规模木结构,主要材料是在俄勒冈州里德尔制造并预制的胶合层压木框架和CLT板。
该项目的主要目标是通过在市场办公楼中使用国产CLT板,为波特兰和美国未来能够更广泛地采用可再生大规模木材建筑技术铺平道路。本案的设计方法反映了对这种可持续技术的承诺,通过开发这种以经济、简单、材料表现以及对复杂的机电建筑系统的解析整合为重点的建筑,来展示裸露在外的花旗松的框架结构之美。
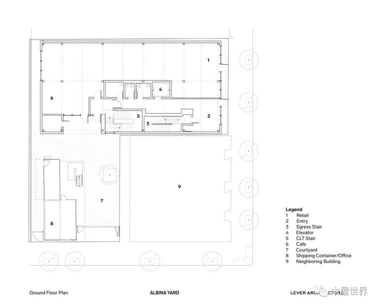
在街道层面,建筑位于一个混合住宅/轻工业社区内,其平面围绕在一个小的“L”形填充场地进行组织。侧面装载的结构核心将公共入口同带有日间照明的CLT出口楼梯相连,通向朝南的私人庭院。位于底层的零售空间与街道相连,包括一个与庭院空间相邻的咖啡厅/酒吧空间。楼上部分可以俯瞰 Hood山和波特兰市中心,其内部平面还可以分成四个小的单元。
为了便于估算,在这里并行设计了两种不同的结构系统:一种采用的标准榫槽的木质装饰板,另一种采用的CLT板。通过与工程师和制造商合作,我们简化了细节,并利用CLT卓越的双向跨越能力来优化成本,以利用更少的胶合层压梁。使用Hundegger K2-ROBOT六轴木工机可以将木柱和木梁的预制误差保持在1/8英寸的公差范围内。这种允许预制部件在现场组装的技术在速度上比传统的木装系统快五倍之多。
面向街道的外立面的动态形式直接体现了四英寸厚的3层CLT面板的悬挑能力。金属镶板修剪出有角度的地板,勾勒出四层框架结构的花旗松胶合木窗墙系统。从倾斜的角度看,整个窗框就像一堵木墙一样。
建筑师:LEVER Architecture
地址:波特兰市,俄勒冈州,美国
类别:办公设施
:Thomas Robinson, Doug Sheets, Jason Stamp
建筑面积:16000.0 ft2
项目年份:2016
摄影师:Jeremy Bittermann, LEVER Architecture
厂家:Sierra Pacific Windows
来源:智慧证书 发布于:2019-02-20